Zum Inhalt springen
Home
Über uns
Leistungen
Objektplanung
Tragwerksplanung
Bauleitung
Bauwerksprüfung
Projekte
Stellenangebote
Kontakt
Home
Über uns
Leistungen
Objektplanung
Tragwerksplanung
Bauleitung
Bauwerksprüfung
Projekte
Stellenangebote
Kontakt
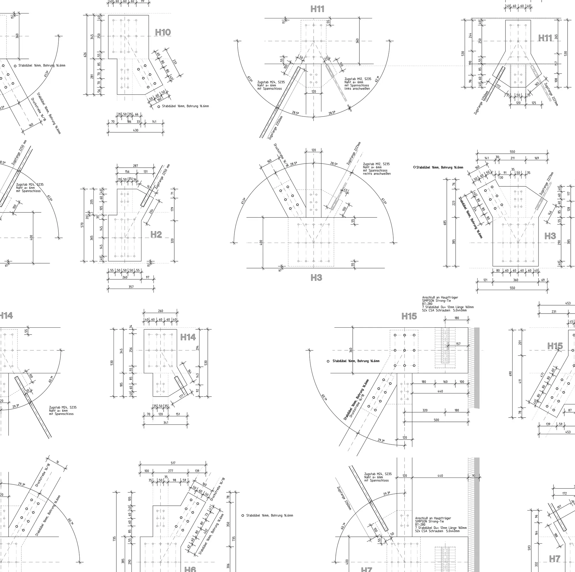
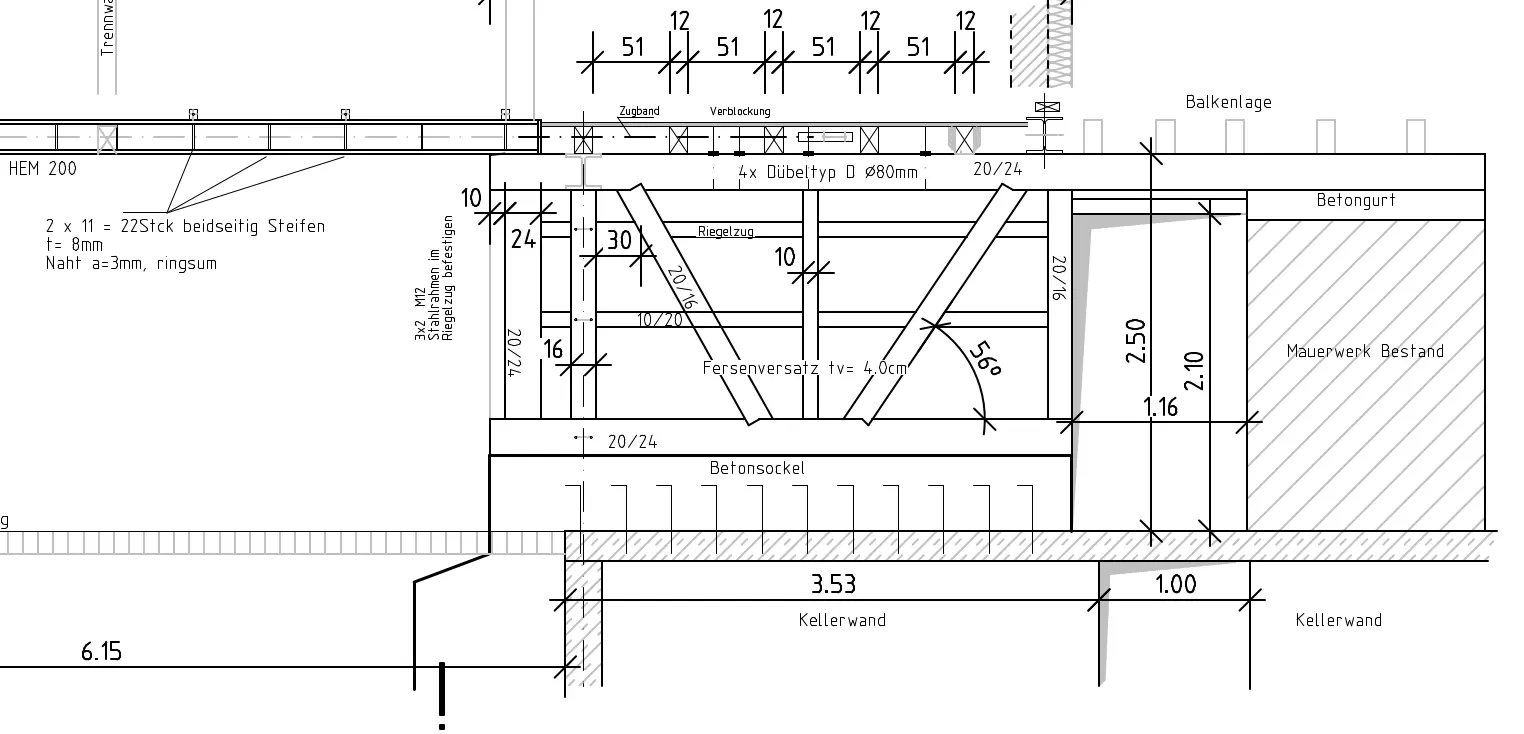
Holzbau
Umsetzung diverser Projekte im konstruktiven Holzbau
Umsetzung diverser Projekte im konstruktiven Holzbau – Entwurf, Konstruktion, Tragwerksplanung.
Weitere Projekte
Erneuerung eines Stützbauwerks und Dammverbreiterung bei Neidenfels
Strecke 3280 Homburg – Ludwigshafen, Bahn-km 68+025 – 68+144
Mehr erfahren
Ausbau der K4770 bei Horb-Rexingen - Erstellung einer Winkelstützwand
Gesamtlänge: 51,50m – Konstruktionshöhe: bis zu 3,80m
Mehr erfahren
Erneuerung der EÜ Mühlkanal bei Frankenhardt
Strecke 4940 Goldshöfe – Crailsheim, Bahn-km 23+582
Mehr erfahren
Kontakt
Sprechen Sie mit uns